Book

Info

House Plan Collection

Local:  901-754-9874
Fax:  901-755-3869

Links

Map

New Plans

Quaint Existence
Quaint Existence
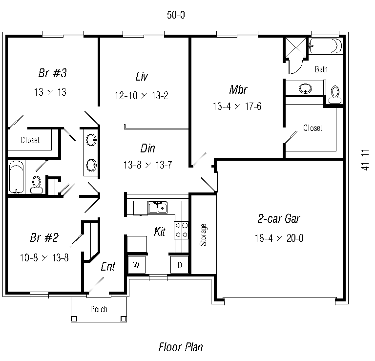
Plan #1459-471-1
PB0213
Areas

(square feet)

Total Living:

1459

Garage & Storage:

442

Porch(es):

29

Total under roof:

1930

1 story
3 bedrooms
2 baths

50'-0" Wide
41'-11" Deep
Slab Foundation
© Ryan & Associates
Floor Plan

Here is an example of a splendid house with plenty of character and charm. This three bedroom design lets ordinary people enjoy the benefits of owning a nice home. Each thread of space has been thought out so as that nothing goes to waste. The utility room has been cleverly tucked away from the kitchen at the front of the house. The dining room sits between the kitchen and living room, thus making house traffic less of a hassle. The master bedroom is split from the other two bedrooms. In the master bedroom a huge walk in closet and bathroom can be found. The vanity for the hall bath uniquely separates the second and third bedrooms. Bedroom three, master bedroom, and the living room each have their own sliding glass patio door. In the two car garage a considerable amount of additional space has been made available for any type of storage that is needed.